Architekten Badenerstrasse 18 8004 Zürich
mail@trachselhiestand.ch
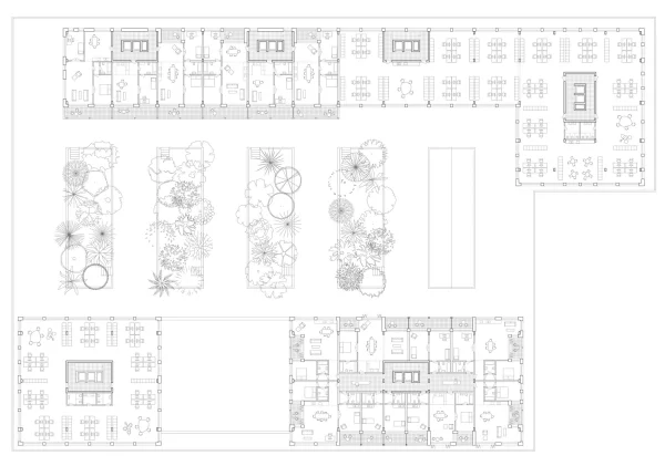
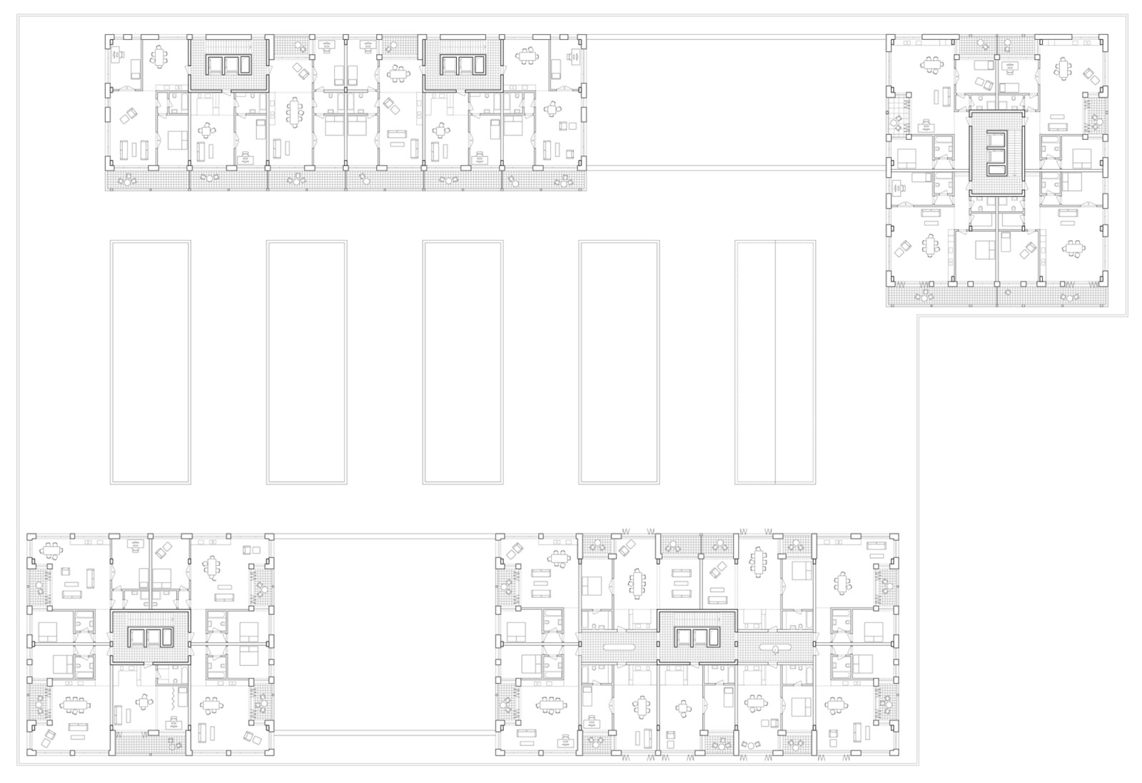
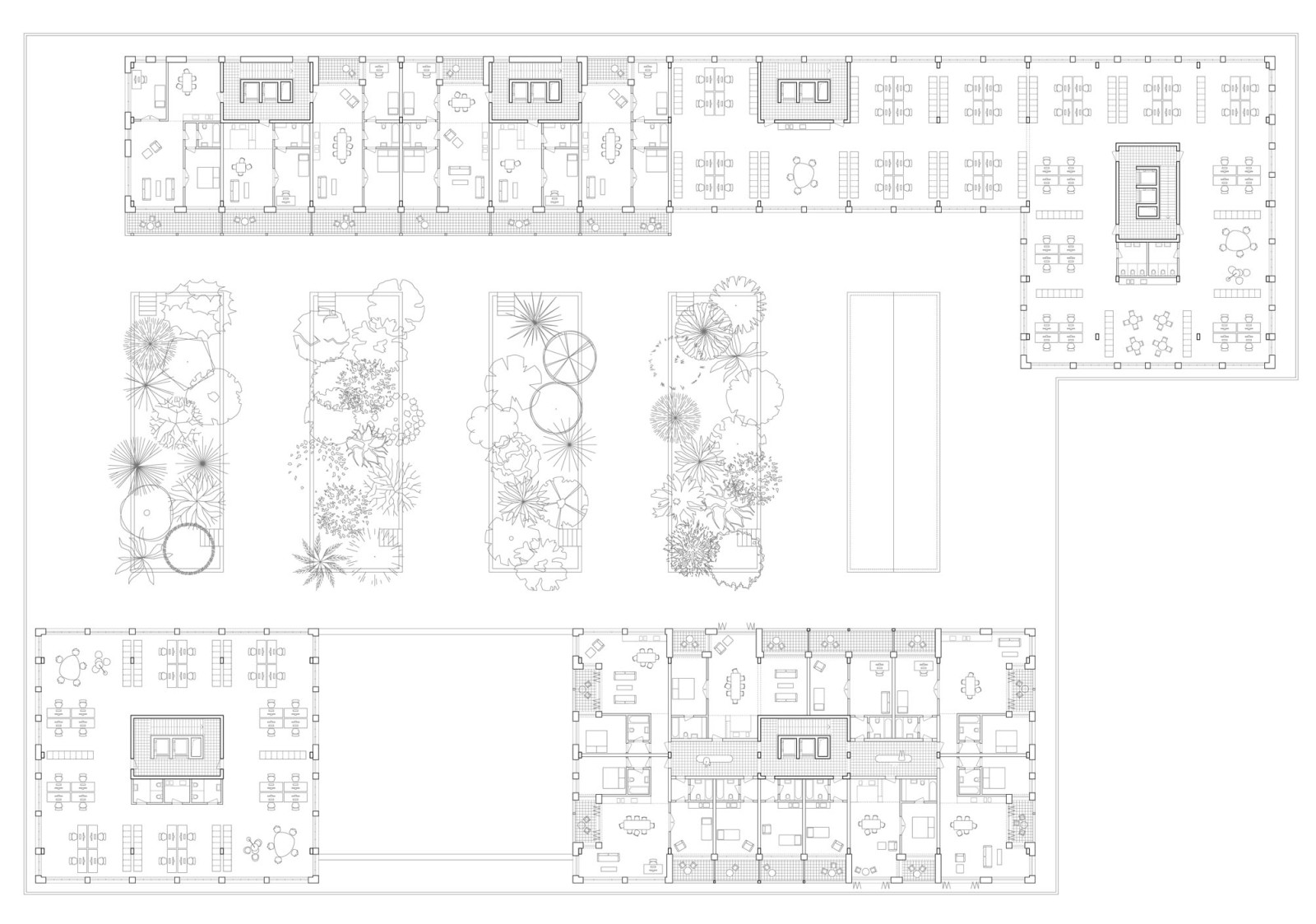
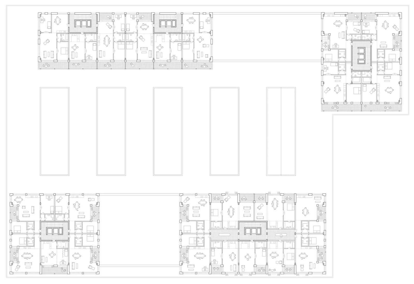
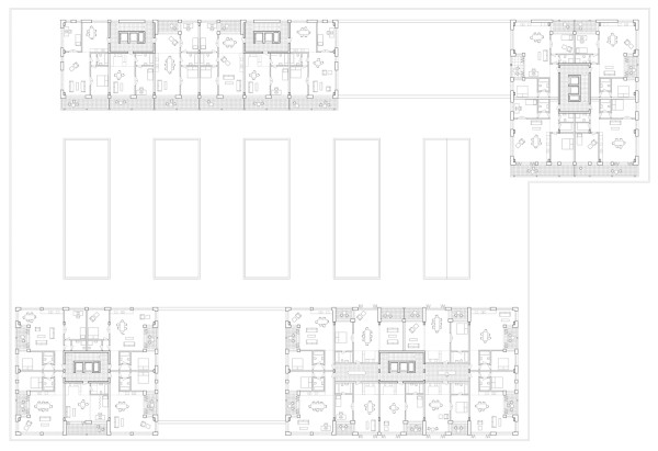
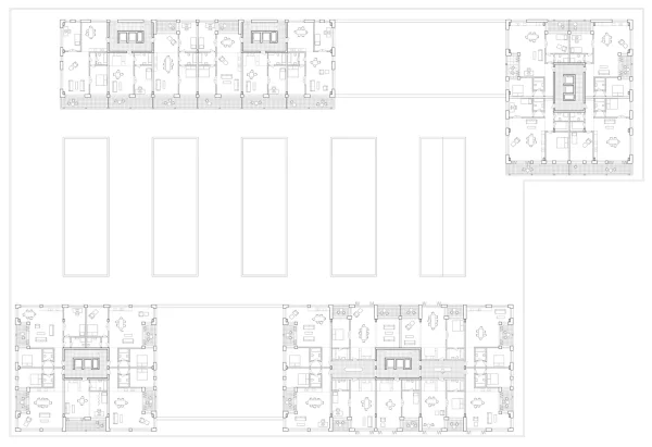
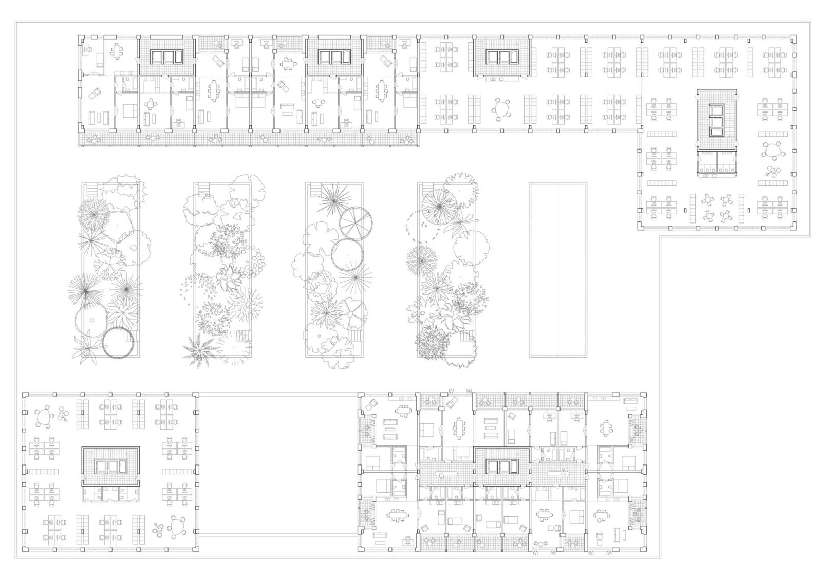
Stadtmitte Arbon, Wettbewerb 2017, 2.Rang