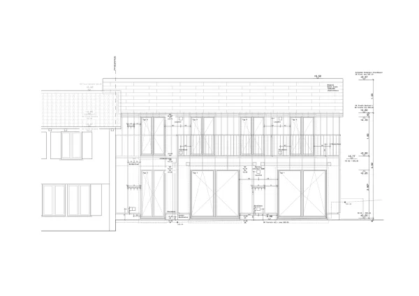
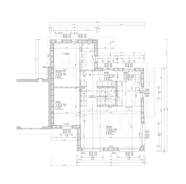
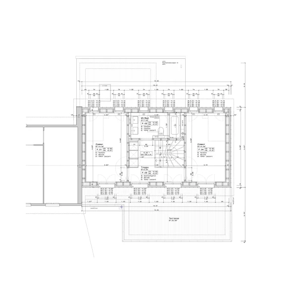
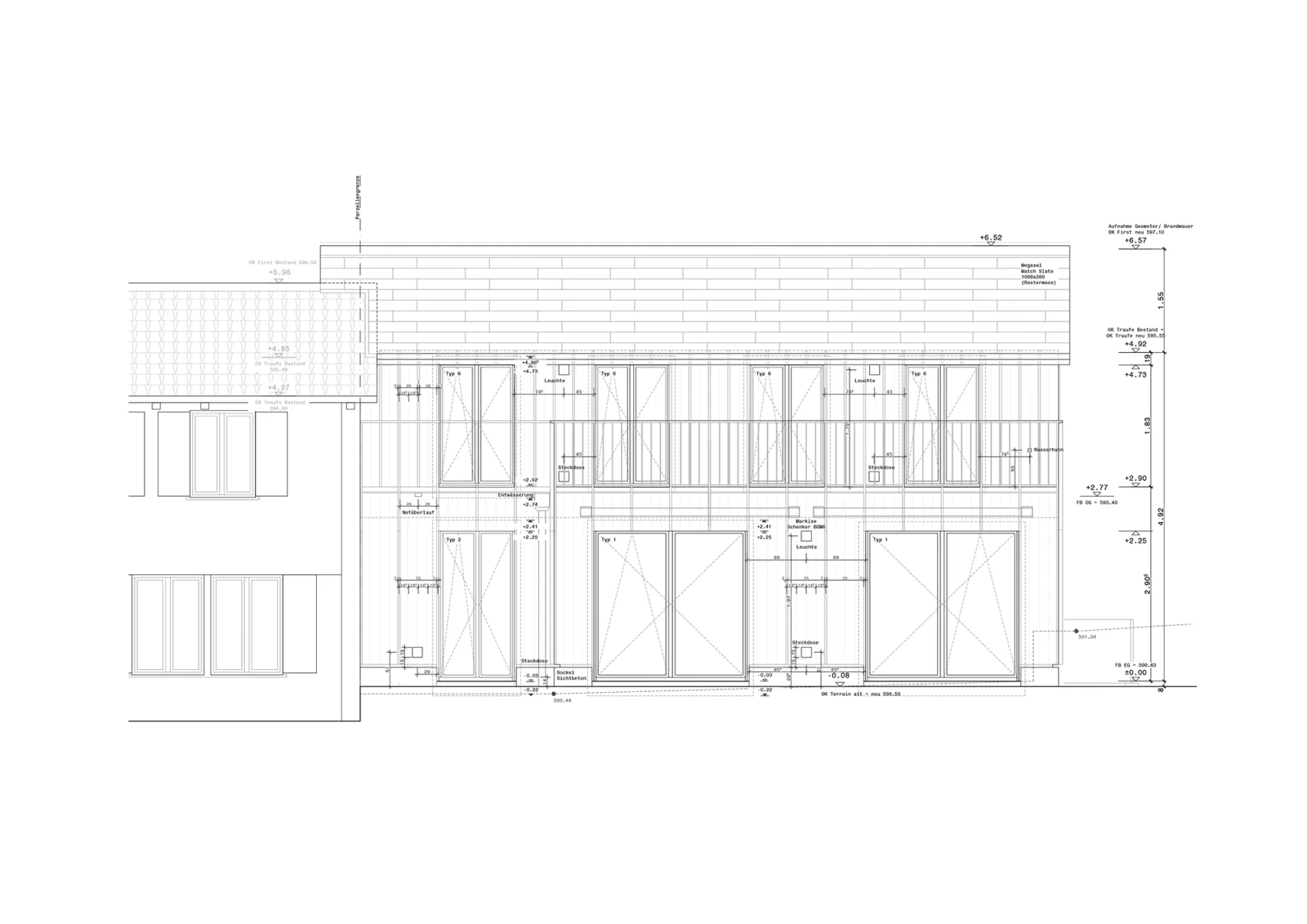
Einfamilienhaus Zollikerberg

2023-25, Bauherrschaft: Privat, Bauleitung: Baustudio GmbH, Bauingenieur: Federer und Partner Bauingenieure AG, Haustechnikplanung: P. Schärli und Partner Sanitärplanung GmbH, Elektroplanung: Wyder Elektroplanung GmbH, Bauphysik: Gartenmann Engineering AG, Holzbauer: Kübler AG Holzbau

Architekturfotografie: Lukas Ziegler, Baustellenfotografie: Trachsel Hiestand Architekten